
高速送紙飛達頭,可根據紙張情況自由調整。

●紙張輸送到前規減速機構。
●推拉兩用側規,操作側、傳動側各一套。側規可在推拉規間調節以滿足不同紙張需求。

●模切底板和刀模板回轉裝置。
●模切刀版與模切板框的聯接采用抓釘螺母和螺絲形式,裝入時采用中央定位系統,換版快捷、準確。
●模切板框和模切下墊板采用日本 SMC 氣量調節器鎖定,避免上板框鎖定安裝不到位的情況,有效避免人為因素操作造成的損失。

●上清廢傳動機構。
●上清廢框抬起裝置,可任意選擇是否使用清廢功能。
●中間清廢陰模傳動機構。
●下清廢傳動機構。
●中間清廢板的安裝采用中心線快速定位安裝方式,使操作人員可以快速安裝清廢板,提高換板效率。

叼口部分廢邊通過此裝置剝離并且輸送到機器外部,從而完成四邊清廢。

無需任何操作,主、副收紙裝置自動切換,大大提升工作效率。

整機采用集中自動供油系統,確保傳動部位不缺油。
| 輸紙部 | BHT-1500CE |
| 01、不停機高速送紙部 | 〇 |
| 02、魚鱗式強力吸紙飛達頭,4吸6送,吸頭可配合紙張的變形狀況調試各種吸紙角度 | 〇 |
| 03、可調式吸風筒,吸頭及分氣閥超硬合金處理 | 〇 |
| 04、3道飛達頭防撞裝置 | 〇 |
| 05、橫向分紙吹風裝置 | 〇 |
| 06、主、副堆紙臺不停車交替,飛達不停機操作 | 〇 |
| 07、主給紙堆電動左右微調裝置 | 〇 |
| 08、預堆紙裝置配置軌道使操作人員可準確方便地將紙堆送入飛達 | 〇 |
| 09、紙張對位調節裝置,能夠在不停機的狀態下對紙張到達前規距離進行手動調整 | 〇 |
| 10、大斜面輸紙臺,適合于薄紙與彎曲紙張的高速輸送 | 〇 |
| 11、紙張輸送到前規減速機構 | 〇 |
| 12、機電式雙張檢測器 | 〇 |
| 13、四個前規可單獨調整 | 〇 |
| 14、壓紙裝置,更加順暢地將彎曲紙張送到前規 | 〇 |
| 15、推拉兩用側規,操作側、傳動側各一套。側規可在推拉規間調節以滿足不同紙張需求 | 〇 |
| 16、側規、前規紙張光電檢測 | 〇 |
| 17、進口輸紙皮帶及不銹鋼傳送板 | 〇 |
| 18、輸紙框氣動抬起裝置 | 〇 |
| 19、PLC及電子凸輪控制整機的時序 | 〇 |
| 20、德國貝克品牌吹吸兩用真空泵 | 〇 |
| 21、紙張不到位強制夾紙和開牙裝置 | 〇 |
| 模切部 | |
| 01、整機鑄件采用QT-700-2球墨鑄鐵 | 〇 |
| 02、進口蝸輪,蝸桿與 40cr 曲軸 | 〇 |
| 03、整套進口陽極處理鋁合金牙排及定位結構,每條牙排采用可調式牙排結構 | 〇 |
| 04、進口主傳動鏈條 | 〇 |
| 05、進口間歇分割器 | 〇 |
| 06、齒輪傳動、精度準確 | 〇 |
| 07、進口扭力限制過載保護器 | 〇 |
| 08、主傳動進口氣動離合器剎車裝置 | 〇 |
| 09、壓力自動調節裝置,可通過PLC觸摸屏按鍵實現壓力的準確控制 | 〇 |
| 10、模切底板和刀模板回轉裝置 | 〇 |
| 11、15mm模切鋼板墊板配備5mm組合式下墊板中心定位結構+/-0.9mm縱橫向微調裝置, 換版快捷、簡單, 減少補版作業時間 | 〇 |
| 12、模切刀版與模切板框的聯接采用抓釘螺母和螺絲形式,裝入時采用中央定位系統,換版快捷、準確 | 〇 |
| 13、模切板框和模切下墊板采用日本SMC氣量調節器鎖定,避免上板框鎖定安裝不到位的情況,有效避免人為因素操作造成的損失 | 〇 |
| 14、西門子(茵夢達)品牌主電機傳動 | 〇 |
| 15、日本SMC氣壓檢測裝置,氣壓過低報警提示 | 〇 |
| 16、配備儲氣罐,確保整機氣壓穩定 | 〇 |
| 17、整機采用集中自動供油系統,確保傳動部位不缺油 | 〇 |
| 清廢部(三框、四邊清廢) | |
| 01、采用三框清廢機構 | 〇 |
| 02、上清廢框抬起裝置,可任意選擇是否使用清廢功能 | 〇 |
| 03、采取公母模版實現各式清廢 | 〇 |
| 04、中間清廢板的安裝采用中心線快速定位安裝方式,快速安裝清廢板,上、下框運行,而中框不運行,少打連點,不易散板 | 〇 |
| 05、漏斗式廢料收集裝置 | 〇 |
| 06、叼口清廢裝置可將叼口廢邊自動輸送到機外,配合清廢滑道,可自動滑入主清廢通道 | 〇 |
| 收紙部 | |
| 01、卷簾式輔收紙架,可實現不停機收紙 | 〇 |
| 02、高堆收紙臺升降裝置,收紙結構可整堆紙拉出機外(高堆收紙專用) | 〇 |
| 03、收紙齊紙裝置 | 〇 |
| 04、上下極限開關光電檢測,防止收紙臺堆紙過高和紙張上卷 | 〇 |
| 05、彈簧鏈條調節裝置,調節彈簧鏈條漲緊后,可減少牙排轉向的慣量沖擊,并保持鏈條的均衡漲緊度 | 〇 |
| 電氣部 | |
| 01、德國西門子PLC控制系統 | 〇 |
| 02、模切部和收紙部采用德國西門子10.4英寸和7英寸觸摸顯示屏 | 〇 |
| 03、整機采用德國Moeller的繼電器、交流接觸器、空氣開關和按鈕,保證了電器部分的穩定和可靠 | 〇 |
| 04、整機采用日本歐姆龍Omron的光電開關,光纖,編碼器和傳感器,確保電氣檢測各部位動作的準確和穩定 | 〇 |
注:此配置單只供參考,正式配置單以合同為準。標配:〇;選配:△
| 型號 | BHT-1500CE |
| 最大紙張幅面 | 1520×1100mm |
| 最小紙張幅面 | 480×480mm |
| 最大模切幅面 | 1500×1100mm |
| 最小廢邊寬度 | 10-18mm |
| 叼口空白 | 9-17mm |
| 刀線高 | 23.8mm |
| 板框內版尺寸 | 1600×1146mm |
| 紙張規格 | 0.2-2mm卡紙,≤4mm瓦楞紙 |
| 模切精度 | ≤±0.15mm |
| 最大工作速度 | 6000s/h |
| 最大模切壓力 | 400T |
| 最大給紙高度 (含托板) | 1800mm |
| 最大收紙高度 (含托板) | 1500mm |
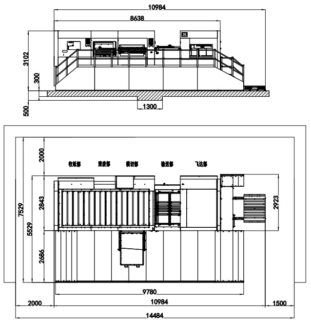
| 整機尺寸 (高堆卷簾式收紙) | 10948×5529×3102mm(L×W×H) (寬含腳踏板) |
| 整機尺寸 (計數堆疊式收紙) | 12600×5500×2800mm(L×W×H) (寬含腳踏板) |
| 機器總重 | 37T |
| 主電機功率 | 18.5kw |
| 滿載功率 | 36kw |
| 氣源要求 | 壓力: 0.6~0.7Mpa,流量: ≥1m3/min |
