
Feeder
High-speed feeder head with adaptive paper adjustment capability.

Paper conveying unit
● Slowdown mechanism for sheet feeding at the front gauge.
● Push-pull dual-purpose side gauges, one set for the operation side and one set for the transmission side. Side gauges can be adjusted between push-pull gauges to meet different paper requirements.

Die cutting unit
● Die-cutting base plate and die mould rotary device.
● The connection between the die cutting plate and the die cutting frame adopts the form of grasping snail and screws, adopt central positioning system, which is fast and accurate.
● The die-cutting plate frame and the die-cutting steel backing plate are locked by the Japanese SMC gas volume regulator to avoid the situation that the locking and installation of the upper frame is not in place, and effectively avoid the loss caused by the operation of human factors.

Stripping Unit(Three frames and four sides)
● Upper waste transmission mechanism.
● Users can choose whether to use the stripping function by lifting upper stripping frame.
● Intermediate negative stripping frame.
● Lower stripping transmission mechanism.
● The installation of the middle stripping board adopts the center line quick positioning installation method, enabling the operators to install the stripping board quickly and improving the plate changing efficiency

Gripper margin stripping device
The gripper stripping device can automatically convey gripper waste edges out of the machine and achieve four-frame stripping.

Non-stop roll-up curtain type paper delivery device
Main collecting device and Auto non-stop roll-up type auxiliary collecting device switch automatically without any operation, significantly enhancing productivity.

Auto lubrication system
The whole machine adopts a centralized automatic oil supply system to ensure that the transmission parts are not short of oil.
| Conveying Unit | BHT-1500CE |
| 01. Non-stop high-speed paper feeding section | 〇 |
| 02. Fish-scale powerful paper suction feeder head with 4 suction and 6 delivery. The suction head can be adjust to various suction angles according to the deformation of the paper | 〇 |
| 03. Adjustable suction blower, suction head and air separation valve processed with ultra-hard alloy | 〇 |
| 04. Triple feeder head anti-collision device | 〇 |
| 05. Horizontal paper separation blower | 〇 |
| 06. The main and auxiliary stacking tables alternate without stopping, and the feeder operates without stopping | 〇 |
| 07. Electrical left/right fine-tuning device for the main feed pile | 〇 |
| 08. The pre-stacking device is equipped with rails so that the operator can accurately and conveniently send the stack of paper into the feeder | 〇 |
| 09. The paper alignment adjustment device can manually adjust the distance before the paper reaches the gauge without stopping the machine | 〇 |
| 10. Large inclined paper table, suitable for high-speed conveying of thin paper and curved paper | 〇 |
| 11. Slowdown mechanism for sheet feeding at the front gauge | 〇 |
| 12. Electromechanical double sheet detector | 〇 |
| 13. Four front gauges can be adjusted individually | 〇 |
| 14. Paper pressing device, more smoothly send the curved paper to the front gauge | 〇 |
| 15. Push-pull dual-purpose side gauges, one set for the operation side and one set for the transmission side. Side gauges can be adjusted between push-pull gauges to meet different paper requirements | 〇 |
| 16. Photoelectric detection of side gauge and front gauge | 〇 |
| 17. Imported paper feeding belt and stainless steel transfer plate | 〇 |
| 18. Pneumatic lifting device for paper feeding frame | 〇 |
| 19. PLC and electronic cam control the timing of the whole machine | 〇 |
| 20. Blow-suction dual-purpose vacuum pump of German Becker brand | 〇 |
| 21. If the paper is not in place, it can force the gripper open and close | 〇 |
| Die-cutting Unit | |
| 01. The entire machine casting is made of QT-700-2 nodular cast iron | 〇 |
| 02. Imported worm gear, worm gear and 40cr crankshaft | 〇 |
| 03. A complete set of imported anodized aluminum alloy gripper bars and positioning structure, fine steel gripper teeth and supporting gripper plates. The gripper bars adopt an adjustable gripper bar structure | 〇 |
| 04. Imported main drive chain | 〇 |
| 05. Imported intermittent splitter | 〇 |
| 06. Adopt the waste removal mechanism of three frames | 〇 |
| 07. Imported synchronous belt and pulley drive | 〇 |
| 08. Imported pneumatic clutch brake device | 〇 |
| 09. Pressure regulating device, which can realize accurate control of pressure through PLC touch screen buttons | 〇 |
| 10. Die-cutting base plate and die mould rotary device | 〇 |
| 11. The 15mm die-cut steel backing plate is equipped with a 5mm combined lower backing plate center positioning structure +/-0.9mm vertical and horizontal fine-tuning device, which makes plate changing fast and simple, reducing the time for plate replenishment | 〇 |
| 12. The connection between the die cutting plate and the chase adopts the form of grasping snail and screws, adopt central positioning system, which is fast and accurate | 〇 |
| 13. The die-cutting chase and the lower mat are locked by the Japan SMC gas regulator, which can prevent improper locking of the upper frame caused by human error during installation | 〇 |
| 14. SIEMENS(INNOMOTICS) brand main motor | 〇 |
| 15. Japan SMC air pressure detection device, low air pressure alarm | 〇 |
| 16. Equipped with an air storage tank to ensure the stability of the air pressure of the whole machine | 〇 |
| 17. The whole machine adopts a centralized automatic oil supply system to ensure that the transmission parts are not short of oil | 〇 |
| Stripping Unit(Three frames and four sides) | |
| 01. Adopt the stripping mechanism of three frames | 〇 |
| 02. Upper waste transmission mechanism | 〇 |
| 03. Male-female die plates to achieve versatile stripping | 〇 |
| 04. The installation of the middle stripping board adopts the center line quick positioning installation method, and the stripping board can be quickly installed. The upper and lower frames operate while the middle frame remains stationaryso there are fewer connection points, and the plate is not prone to coming apart | 〇 |
| 05. Funnel type waste collection device | 〇 |
| 06. The gripper stripping device can automatically convey gripper waste edges out of the machine and, with the stripping slideway, they can automatically slide into the main stripping channel | 〇 |
| Delivery Unit | |
| 01. Roll-up curtain type auxiliary paper delivery device, can realize non-stop paper delivery | 〇 |
| 02. High pile stacking table adopts lifting device, paper delivery structure can pull the whole pile of paper out of the machine.(Special for high pile stacking delivery) | 〇 |
| 03. Paper delivery alignment device | 〇 |
| 04. Photoelectric detection of upper and lower limit switches can effectively prevent the paper stacking table from excessive paper pile stacking and paper curling up | 〇 |
| 05. Spring chain adjustment device: Adjusting the tension of spring chain can reduce the inertia impact during the steerings of the gripper bar, and maintain the balanced tension of the chain | 〇 |
| Electrical unit | |
| 01. Germany Siemens PLC control system | 〇 |
| 02. The die-cutting unit and the delivery unit adopt 10.4-inch and 7-inch Germany Siemens touch screens | 〇 |
| 03. The machine adopts Germany Moeller brand relays, AC contactors, air switches and buttons, to ensure the stability and reliability of electrical parts | 〇 |
| 04. The machine adopts Japanese Omron brand photoelectric switch, optical fiber, encoder and sensor, to ensure the accuracy and stability of electrical detection of each part of the action | 〇 |
Note: This allocation sheet is for reference only, the formal allocation sheet is subject to the contract. Standard configuration: 〇; Optional: △
| Model | BHT-1500CE |
| Max. Sheet Size | 1520×1100mm |
| Min. Sheet Size | 480×480mm |
| Max. Cutting Size | 1500×1100mm |
| Min. Gripper Margin | 9-17mm |
| Min. Width of Cuts | 10-18mm |
| Cutting Rule Height | 23.8mm |
| Inner Chase Size | 1600×1146mm |
| Stock Range | Cardboard:0.1-2mm Corrugated board: ≤4mm |
| Die Cutting Accuracy | ≤±0.15mm |
| Max. Die Cutting Force | 400T |
| Max. Working Speed | 6000s/h |
| Max. Feeder Pile Height | 1800mm(With pallet) |
| Max. Delivery Pile Height | 1500mm(With pallet) |
| Main Motor Wattage | 18.5KW |
| Full Load Wattage | 36KW |
| Air Requirement | Pressure: 0.6-0.7Mpa, Flow: ≥0.1m3/min |
| Net Weight of Machine | 37T |
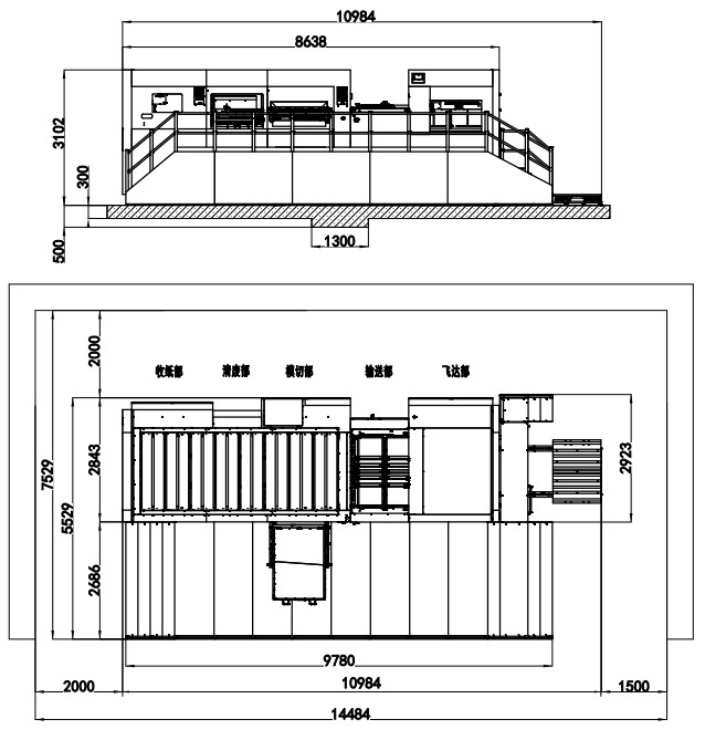
| Machine Dimensions(Stacking Delivery) | 10948×5529×3102mm(L×W×H) (L: paper prepared track included, W: platform included) |
| Machine Dimensions(Batch Delivery Conveying) | 12600×5500×2800mm(L×W×H) (L: paper prepared track included, W: platform included) |

